Locação Lojas / Locação / Alto da Rua XV
DESCRIÇÃO
Loja para Locação
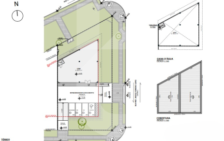
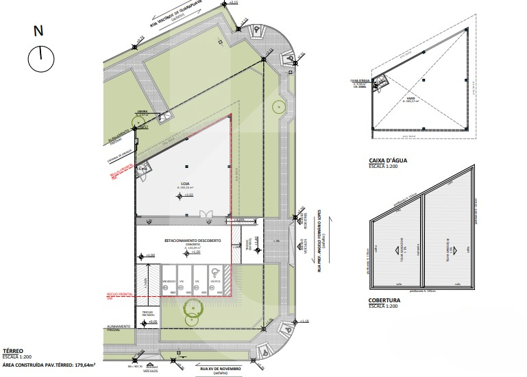
Endereço: Rua XV de Novembro, n°3119 - Bairro Alto da Rua XV - Curitiba/PR.
Excelente oportunidade de locação em um futuro empreendimento de esquina, localizado próximo aos Hospitais Menino Deus e das Nações. Região com grande movimento de pedestres e veículos, cercada por comércios e de fácil acesso!
Área total construída: 179,64.
Estacionamento com 04 vagas de uso comum.
Valor de locação: R$ 19.500,00/mês.
Previsão de entrega para março de 2026.
Valor de IPTU: Consultar valores.
Fale conosco e viabilize o seu NEGÓCIO!
“Os valores e condições comerciais anunciados poderão ser alterados sem prévio aviso
R$ 19.500,00
Rua XV de Novembro 3119, Alto da Rua XV , Curitiba, Paraná
179,64 m²
Lojas
Imóvel 180
