DESCRIÇÃO
Lojas para Locação
Endereço: Rua Professor Joao Falarz, nº 462, bairro Orleans, Curitiba/PR.
Centro Comercial localizado no Orleans, próximo a Rodovia do Café e da Rua Prof. Pedro Viriato Parigot de Souza, com grande fluxo de carros e pedestres.
Área total do terreno: 1.234,80 m²
Estacionamento com 44 vagas de uso comum sendo 29 localizadas no subsolo e 15 no térreo.
Com pé direito duplo de 6 metros.
O empreendimento contará com um elevador de uso comum.
Área e valores de locação:
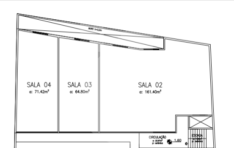
Loja 01: com 260,41 m² de área útil - R$ 26.000,40 /mês
Loja 02: com 200,40 m² de área útil - R$ 14.912,00 /mês
Loja 03: com 64,80 m² de área útil - R$ 5.184,00 /mês
Loja 04: com 71,42 m² de área útil - R$ 5.713,60 /mês
Sobrelojas: com 617,18 m² de área útil – R$ 30.859,00 / mês
Valor de IPTU: Consultar valores.
As lojas serão entregues na característica “Core e Shell” e se houver necessidade, pode ser estudado a unificação.
Fale conosco e viabilize o seu NEGÓCIO!
“Os valores e condições comerciais anunciados poderão ser alterados sem prévio aviso”.
R$ 14.912,00
Rua Professor Joao Falarz, 462, Orleans , Curitiba, PR
200,40 m²
Lojas
Imóvel 06
